お知らせ
2016/03/11

半蔵門ハウス 801号室 オープンルーム開催! 11(金)・12(土)・13(日)

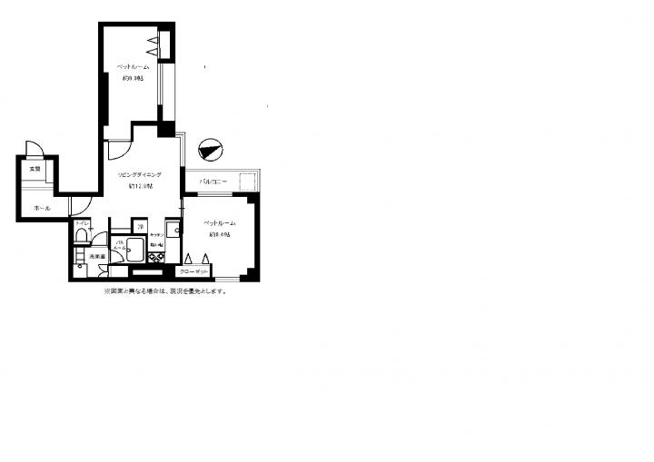
販売価格 6380万円(税込)
専有面積 72.20㎡ バルコニー 4.49㎡
リノベーションマンション 
 ◆キッチン新規交換  ◆建具新規交換
 ◆浴室新規交換    ◆ダウンライト新設
 ◆フローリング新規張替 等々
半蔵門駅 徒歩2分 
麹町駅 徒歩4分

3/11・12・13開催!! 上記以外でもご案内予約可能です!!

地図左上の人型アイコンを地図上にドラッグするとストリートビューで表示されます。

千代田区麹町2-5-18

地図を戻す

会社案内

株式会社トラスティホーム

千代田区五番町2-10 さくら五番町ビル1階

メールフォームはこちら

宅建免許番号: 東京都知事(5)第80420号