お知らせ
2015/11/27

スカイコート隅田公園 オープン開催

オープンルーム開催!

11/28・29(土.日)11:00~17:00

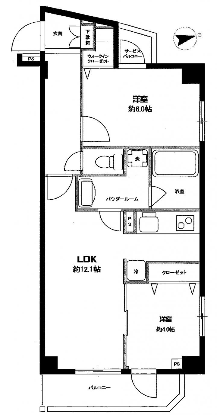
平成20年11月築
50.21㎡ 2LDK 6階
眺望良好
バルコニーから東京スカイツリー見えます。
東・北・西の角部屋

室内大変きれい
バリアフリー
ペットも飼えます

2,590万円  

おこしくださ~~~~い。


地図左上の人型アイコンを地図上にドラッグするとストリートビューで表示されます。

墨田区向島5-12-11

地図を戻す

会社案内

株式会社トラスティホーム

千代田区五番町2-10 さくら五番町ビル1階

メールフォームはこちら

宅建免許番号: 東京都知事(5)第80420号